
12ÔÂ19ÈÕ
ºáÇÙ½ðÈÚµºµÄÖ÷ÒªÍâÁªÍ¨µÀ
º£ÇÙÇÅ˳Ëìͨ³µ
ÏîÄ¿½¨³Éºó½«½øÒ»²½
ÍêÉÆõè¾¶¡¢ÊÐÕþ¹ÜÍøÏµÍ³
²¢Ðγɱõº£¾°¹ÛÇø
ÌṩÐÝÏÐÓéÀÖºÍÇ×Ë®¿Õ¼ä
ÒÔÓÅÔ½µÄÓ²¼þÇéÐÎ
ΪÔö½øÏàÖúÇø½¨É躻ʵ»ù´¡

ͨ³µÏÖ³¡Í¼
½³ÐÄÉè¼Æ ½ðÈÚµºÊÓ¾õ½¹µã
º£ÇÙÇÅλÓÚºáÇÙ½ðÈÚµºÈ˹¤ºÓµÄÈë¿Ú´¦£¬£¬£¬£¬£¬£¬£¬ÊÇͨÍù½ðÈÚµº¼°ÄÚºÓË®µÀµÄ´óÃÅ¡£¡£¡£¡£¡£ÇÅÌåÍŽáÌØÊâµÄ°¶ÏßÌõ¼þ£¬£¬£¬£¬£¬£¬£¬½ÓÄÉÖ÷¸±¹°Éè¼Æ£¬£¬£¬£¬£¬£¬£¬×÷ÓýÇ¿ÁÒ¡¢ÆæÒì¶øÆÄ¾ß±ê¼ÇÐԵĽṹÑùʽ£¬£¬£¬£¬£¬£¬£¬¶¯Ì¬¸ÐÓë¹¥»÷Á¦Ê®×㣬£¬£¬£¬£¬£¬£¬ÓëÖé°ÄµÚÒ»¸ßÂ¥ºáÇÙIFCÅäºÏ×é³ÉºáÇÙ½ðÈÚµºµÄÊÓ¾õ½¹µã¡£¡£¡£¡£¡£

ÇÅÌå¸Ö½á¹¹Ö÷¹°¸ß58Ã×£¬£¬£¬£¬£¬£¬£¬¿ç¶È192Ã×£¬£¬£¬£¬£¬£¬£¬×ÜÖØÔ¼1100¶Ö£¬£¬£¬£¬£¬£¬£¬ÎªÁùÃæÌå±ä½ØÃæÏäÐͽṹ¡£¡£¡£¡£¡£Ö÷¸±¹°ÀßÏà½Ó£¬£¬£¬£¬£¬£¬£¬ÒÔº£ÀËÐÎË¿´øÎª½á½á¹¹ÐÍ£¬£¬£¬£¬£¬£¬£¬ÒÔÃàÑӵĻØÂ·Ñùʽ¾À¸ðÇÅÃæ£¬£¬£¬£¬£¬£¬£¬·Ç¶Ô³ÆµÄÔìÐÍÒâ¾³ÓëË®ÃæÏ໥½»Ó³£¬£¬£¬£¬£¬£¬£¬×éºÏ³öÇåÎú¿É¼ûµÄ8×ÖÐÎͼ°¸¡£¡£¡£¡£¡£
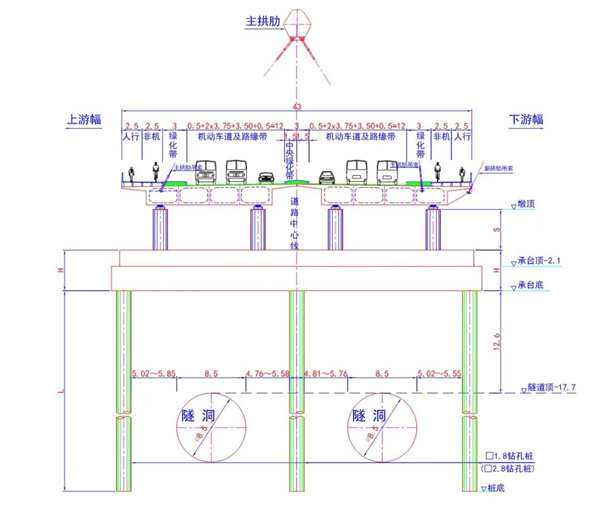
º£ÇÙÇŵÄÉè¼Æ³ýÐÎ×´ÆæÒìÍ⣬£¬£¬£¬£¬£¬£¬»¹³ä·Ö˼Á¿µ½Ë®ÎÄ¡¢µØÖÊÌõ¼þºÍ¹¤³ÌÌØÕ÷£¬£¬£¬£¬£¬£¬£¬Ï²¿½á¹¹½ÓÄÉ¿ò¼ÜÊÜÁ¦ÏµÍ³£¬£¬£¬£¬£¬£¬£¬Ñ¡ÓÃ×ê¿×¹à×¢×®×÷Ϊ½á¹¹»ù´¡£¬£¬£¬£¬£¬£¬£¬³Ð̨½ÓÄÉ͹×ÖÐζÏÃæ¸Ö½î»ìÄýÍÁ½á¹¹£¬£¬£¬£¬£¬£¬£¬°ü¹Ü×®»ù´¡ÓëËíµÀ¾»¼ä¾àÖª×ãÒªÇ󣬣¬£¬£¬£¬£¬£¬¼ÈïÔÌÁË×®»ù¸öÊý£¬£¬£¬£¬£¬£¬£¬Ò²×èÖ¹ÁËÓë¹²ÏßλµÄ³Ç¹ìËíµÀÏ໥×ÌÈÅ¡£¡£¡£¡£¡£

¿ç³Ç¹ìËíµÀϲ¿¿ò¼ÜÊÜÁ¦ÏµÍ³
¾«ÓÚÆ·ÖÊ ¡°ºÚ¿Æ¼¼¡±¹¥¼á¿ËÄÑ
ÊܵØÖÊÇéÐÎÖØ´ó¡¢×÷Òµ¿Õ¼äÕ¡¢¹¹¼þÒìÐÎÇÒÖØÁ¿´óµÈÒòËØÓ°Ï죬£¬£¬£¬£¬£¬£¬º£ÇÙÇÅ×÷ÒµÄÑ¶ÈÆ«´ó¡£¡£¡£¡£¡£Îª´Ë£¬£¬£¬£¬£¬£¬£¬¹¤³ÌÏîÄ¿²¿Ê©Õ¹¡°¾«ÓÚÆ·ÖÊ¡¢×¨Òµ¸ßЧ¡±µÄKU¿áÓΡ¤(ÖйúÇø)¹Ù·½ÍøÕ¾¾«Éñ£¬£¬£¬£¬£¬£¬£¬¾«×¼Ê©²ß£¬£¬£¬£¬£¬£¬£¬ÏȺ󹥿ËÉî»ù¿Ó¹¤³Ì¡¢¸ß֧ģϵͳ¡¢¸Ö¹°ÆðÖØµõ×°µÈ½¨ÉèÄѵ㣬£¬£¬£¬£¬£¬£¬Ë³ËìÍÆ¶¯Ê©¹¤½ø¶È¡£¡£¡£¡£¡£

Éî»ù¿Ó¹¤³Ì
³Ð̨»ù¿ÓºÍ¹ÜÏß×î´ó¿ªÍÚÉî¶ÈΪ7.5-9Ã×£¬£¬£¬£¬£¬£¬£¬Êô³¬Î£´ó¹¤³Ì£»£»£»£»£»
»ù¿ÓÖ§»¤¾ù½ÓÄÉ15m¸Ö°å×®Ö§»¤£¬£¬£¬£¬£¬£¬£¬ÉèÖÃÁ½²ã¸ÖÖ§³Ö£»£»£»£»£»
·âµ×»ìÄýÍÁ½ÓÄÉC20£¬£¬£¬£¬£¬£¬£¬ºñ¶È50cm£»£»£»£»£»
ÑÏ¿áÂäʵÇ徲Ѳ²éºÍ»ù¿Ó¼à²â£¬£¬£¬£¬£¬£¬£¬È·±£Éî»ù¿Ó¹¤³ÌµÄ˳ËìÊ©¹¤¡£¡£¡£¡£¡£
¸ß֧ģϵͳ
Ö÷ÁºÂúÌÃÖ§¼Ü×î´óÀëµØ¸ß¶È5.5Ã×£¬£¬£¬£¬£¬£¬£¬µ¥¿ç×40Ã×£¬£¬£¬£¬£¬£¬£¬ÁººÉÔØÁè¼Ý20KN/m£¬£¬£¬£¬£¬£¬£¬Êô³¬Î£´ó¹¤³Ì£»£»£»£»£»
Ϊȷ±£Ê©¹¤Çå¾²£¬£¬£¬£¬£¬£¬£¬Ö§¼Ü´îÉèÇÒµ×Ä£×°ÖÃÍê³Éºó£¬£¬£¬£¬£¬£¬£¬¶ÔÖ§¼Ü¾ÙÐÐԤѹ£»£»£»£»£»
ͨ¹ýԤѹÏû³ýÖ§¼Ü¼°µØ»ùµÄ·Çµ¯ÐÔ±äÐΣ¬£¬£¬£¬£¬£¬£¬»ñµÃÖ§¼ÜµÄµ¯ÐÔ±äÐÎÖµ×÷Ϊʩ¹¤Ô¤Áô¹°¶ÈµÄÒÀ¾Ý¡£¡£¡£¡£¡£
¸Ö¹°ÆðÖØµõ×°
ÇÅÁºÖ÷¹°ÀßΪÏäÐθֹ¹¼þ£¬£¬£¬£¬£¬£¬£¬½ÓÄɷֶεõ×°£¬£¬£¬£¬£¬£¬£¬×î´óÆðµõÖØÁ¿156.28t£¬£¬£¬£¬£¬£¬£¬×î´óÆðµõ¸ß¶È58Ã×£»£»£»£»£»
ÔÚÇÅÃæ´îÉèÔÝʱ̥¼Ü£¬£¬£¬£¬£¬£¬£¬×°Ö÷ÖÅÉÁº¡¢Ô¤Âñ¼þ£»£»£»£»£»
½«¸Ö¹°·Ö¶ÎÔÚÆä×°ÖÃλÖõÄÇÅÃæºÍ¸±¹°²àÏòÆ´³É×°Öõ¥Î»£¬£¬£¬£¬£¬£¬£¬ÔÙ½ÓÄÉ400tÂÄ´øµõ°´Ê©¹¤Ë³ÐòÒÀ´Îµõ×°¡£¡£¡£¡£¡£
´®Öé³ÉÁ´ ÎåÇÅÁº¼ÜÉèͨ;
º£ÇÙÇŵĽ¨³É£¬£¬£¬£¬£¬£¬£¬±ê¼Ç×ÅÖ麣ʮ×ÖÃÅÖÐÑëÉÌÎñÇøºáÇÙÆ¬ÇøÊÐÕþ»ù´¡ÉèÊ©¼°ÅäÌ×¹¤³Ì½¨ÉèÊÂÇéËùÓÐÍê³É¡£¡£¡£¡£¡£
2012ÄêÒÔÀ´£¬£¬£¬£¬£¬£¬£¬Îª¹á³¹Âäʵ¡¶Öé½Èý½ÇÖÞµØÇøË¢ÐÂÉú³¤ÍýÏë¸ÙÒª¡·ºÍ¡¶ºáÇÙ×ÜÌåÉú³¤ÍýÏë¡·£¬£¬£¬£¬£¬£¬£¬×ÅÑÛÓÚÖ麣ÐÂÒ»ÂÖ´óÉú³¤¡¢Íƶ¯ºáÇÙ¿ª·¢£¬£¬£¬£¬£¬£¬£¬Ê®×ÖÃźáÇÙÆ¬ÇøÇÅÁº¹¤³ÌÕýʽÆô¶¯¡£¡£¡£¡£¡£
ÊýÄê¼ä£¬£¬£¬£¬£¬£¬£¬ÏîÄ¿ÏȺóÍê³ÉÁ˺£±´ÇÅ¡¢º£ÔÏÇÅ¡¢º£ÃùÇż°º£ÒíÇŵÄÉè¼Æ¼°Ê©¹¤ÊÂÇ飬£¬£¬£¬£¬£¬£¬º£ÇÙÇÅÓÉÓÚÊÜÖé»ú³Ç¼Ê¹ìµÀ¹²ÏßÓ°Ï죬£¬£¬£¬£¬£¬£¬¹¤³ÌÍÆ½øÉÔÖͺ󡣡£¡£¡£¡£ÏÖÔÚÎå×ùÇÅÁº¾ùÒÑÍ깤£¬£¬£¬£¬£¬£¬£¬½ÔÊǸßÑÕÖµ£¬£¬£¬£¬£¬£¬£¬×ù×ùÓÐÁÁµã¡£¡£¡£¡£¡£
º£±´ÇÅ
Ñ¡ÔñÇáËÉÀËÂþµÄº£ÑóÖ÷Ì⣬£¬£¬£¬£¬£¬£¬Õû¸öÔìÐÍÓÌÈçÉÖÐÅõ³öµÄÒøÉ«Öé±´£¬£¬£¬£¬£¬£¬£¬·´Ó¦Ö麣µÄº£ÑóÎÄ»¯£¬£¬£¬£¬£¬£¬£¬»½ÆðÈËÃǺ£±ßʰ±´µÄÓÅÃÀ»ØÒä¡£¡£¡£¡£¡£

º£ÔÏÇÅ
ÒÔÕ¹³á°¿ÏèµÄº£Å¸ÎªÔìÐÍ£¬£¬£¬£¬£¬£¬£¬Í»³öÁ¢ÃæÐ§¹û¾«Á·ÆæÒ죬£¬£¬£¬£¬£¬£¬º£Æ½Ãæ¿´È¥È纣Ÿչ³á·ÉµÄÓðÏßÓ³ÉäÓÚº£Æ½ÃæÖ®ÉÏ¡£¡£¡£¡£¡£ÇᱡµÄÇÅÉíÓëµ¹Ó°ÐγÉÒ»µÀÓÅÃÀµÄ»¡Ïߣ¬£¬£¬£¬£¬£¬£¬ÆøÑæÓëÓÅÃÀ²¢´æ¡£¡£¡£¡£¡£

º£ÃùÇÅ
ÊÖÒÕÓëÒÕÊõµÄÍêÉÆÈÚºÏ×÷ÓýÁ˺£ÃùÇÅË¿´øÆðÎèµÄÕûÌåÔìÐÍ¡£¡£¡£¡£¡£Á÷ͨµÄÏßÌõ£¬£¬£¬£¬£¬£¬£¬ÓëË®ÃæÎ¢²¨ºôÓ¦£¬£¬£¬£¬£¬£¬£¬Õû¸öÇű»¸¶ÓëÁËÉúÃüµÄʵÁ¦¡£¡£¡£¡£¡£

º£ÒíÇÅ
ÒÔÕö¿ªµÄË«ÒíºÍÁè¼ÝÓÚ³µÐÐÇÅÃæµÄ»¡ÏßÐγÉÒ»¸öÍêÕû»ØÂ·£¬£¬£¬£¬£¬£¬£¬´øÀ´½á¹¹µÄƽºâÓëÎȹ̣¬£¬£¬£¬£¬£¬£¬Ò²×ÔÈ»ÐγÉÁËÃÅ»§µÄÓ¡Ï󡣡£¡£¡£¡£¾°¹Ûƽ̨µÄÑÓÉìÉèÖ㬣¬£¬£¬£¬£¬£¬°ü¹ÜÁËÊÐÃñÐÝÏÐÂÃÐеÄÐèÇ󡣡£¡£¡£¡£

½î¹ÇÒѳɣ¬£¬£¬£¬£¬£¬£¬ÐÛ×˳õÕ¹£¡
Ê®ÓàÄêÀ´
KU¿áÓΡ¤(ÖйúÇø)¹Ù·½ÍøÕ¾½ô¸ú¹ú¼ÒÕ½ÂÔ°²ÅÅ
ΪºáÇÙ¿çÔ½Éú³¤×÷³öÁËÆð¾¢Ð¢Ë³
δÀ´½«¼ÌÐøÊ©Õ¹×ÔÉíÓÅÊÆ
ÖÜÈ«¼ÓÈëÔÁ°ÄÉî¶ÈÏàÖúÇø½¨Éè
ËÜÔìȫж¼»á¹¦Ð§ÃæÄ¿
ÍØÕ¹¸ü´óÉú³¤¿Õ¼ä£¡

